Description
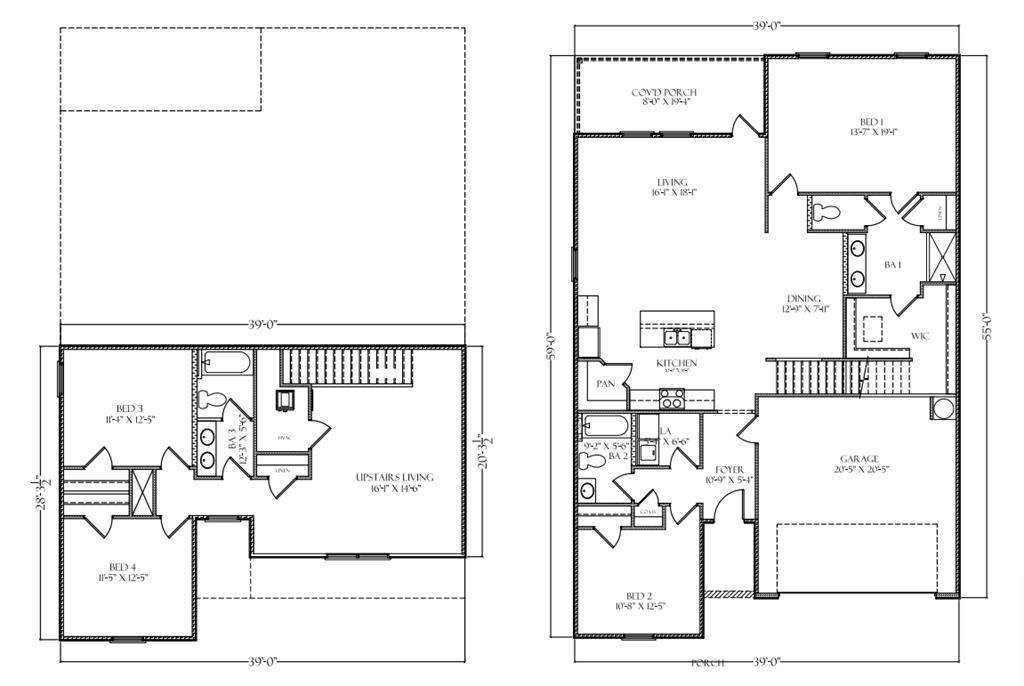
Welcome to 1059 Backwater Rd, located at Windmark Beach. Introducing the Ozark a new plan featured at WindMark Beach in Port Saint Joe, Florida. This beautiful two-story home offers 4-bedrooms with 3-bathrooms, a 2-car garage, and a seamless open layout. At just over 2,400 square feet, there is plenty of room to enjoy this home at the lovely WindMark Beach community. As you enter the home on the first floor, you are met with the foyer featuring a full bathroom and first additional bedroom, perfect for guests. Walking past the foyer is a large open concept living space including the kitchen, living room and dining space. The kitchen includes quartz countertops, under mount sink, smooth top range, stainless steel appliances, pantry, stylish shaker cabinetry, and a center island. With natural light and nearby covered patio access, the living and dining area are integrated perfectly. Towards the back of the main living room is the primary bedroom. This bedroom is a spacious and relaxing space that includes an attached primary bathroom. The double vanity, separate toilet, shower and walk-in closet will provide a haven of relaxation. Returning to the foyer you will find stairs leading to the 2nd floor. The additional 2nd and 3rd bedrooms are both located on the 2nd floor with a gorgeous full bathroom. This bathroom features dual vanities, a soaking tub, and toilet. You will also find a second living space to use however it best fits your needs. In addition to all the features and amenities the Ozark Plan offers, each plan is built with our Smart Home technology package, designed to bring the convenience of life right to your fingertips. This plan is ideal for any size family. Contact our Online Sales Consultant today to schedule your tour at WindMark Beach today!
-
4BEDS
-
0.13ACRES
-
3BATHS
-
11/2 BATHS
-
2,245SQFT
-
$223$/SQFT
School Ratings & Info
Description
Welcome to 1059 Backwater Rd, located at Windmark Beach. Introducing the Ozark a new plan featured at WindMark Beach in Port Saint Joe, Florida. This beautiful two-story home offers 4-bedrooms with 3-bathrooms, a 2-car garage, and a seamless open layout. At just over 2,400 square feet, there is plenty of room to enjoy this home at the lovely WindMark Beach community. As you enter the home on the first floor, you are met with the foyer featuring a full bathroom and first additional bedroom, perfect for guests. Walking past the foyer is a large open concept living space including the kitchen, living room and dining space. The kitchen includes quartz countertops, under mount sink, smooth top range, stainless steel appliances, pantry, stylish shaker cabinetry, and a center island. With natural light and nearby covered patio access, the living and dining area are integrated perfectly. Towards the back of the main living room is the primary bedroom. This bedroom is a spacious and relaxing space that includes an attached primary bathroom. The double vanity, separate toilet, shower and walk-in closet will provide a haven of relaxation. Returning to the foyer you will find stairs leading to the 2nd floor. The additional 2nd and 3rd bedrooms are both located on the 2nd floor with a gorgeous full bathroom. This bathroom features dual vanities, a soaking tub, and toilet. You will also find a second living space to use however it best fits your needs. In addition to all the features and amenities the Ozark Plan offers, each plan is built with our Smart Home technology package, designed to bring the convenience of life right to your fingertips. This plan is ideal for any size family. Contact our Online Sales Consultant today to schedule your tour at WindMark Beach today!
© 2026 Realtors Association of Franklin and Gulf Counties. All rights reserved. IDX information is provided exclusively for consumers' personal, non-commercial use and may not be used for any purpose other than to identify prospective properties consumers may be interested in purchasing. Information is deemed reliable but is not guaranteed accurate by the MLS or Rish Real Estate Group. Data last updated: 2026-03-14T07:42:28.253.
