Description
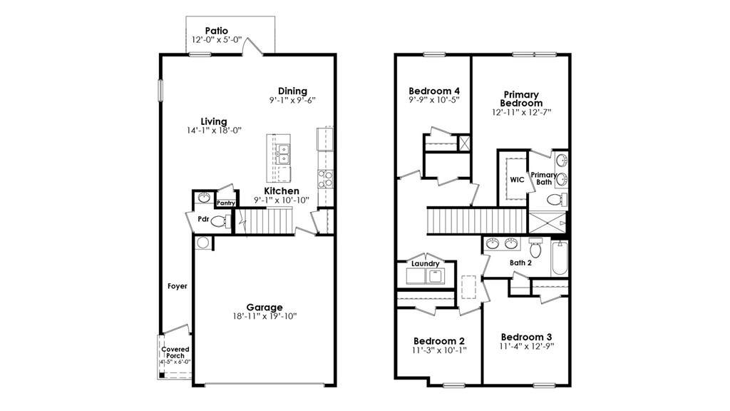
Welcome to 297 Sea Tern Lane, a new home at WindMark Townhomes located in the highly visited Port Saint Joe, Florida. The Sabal Townhome features 2 floor plans, an interior and exterior unit. These thoughtfully designed townhomes offer either 4 bedrooms and 2.5 bathrooms or 3 bedrooms and 2.5 bathrooms. The single townhome has a 1-car garage, and the exterior unit has a 2-car garage. On the outside of these units, you will see quality Color-Plus Hardie Board exteriors, complemented by prairie-style doors and 30-year dimensional shingles. Convenience meets security with steel garage doors equipped with openers, weatherproof outlets, hose bibs, and Kwikset deadbolts on all exterior doors. As you enter inside, you will feel right at home with beautiful EVP flooring at your feet, leading you to the open living room and kitchen or the spacious upstairs. In the kitchen and bathroom, you will find gorgeous quartz countertops, white cabinets with brushed nickel hardware, and stainless-steel appliances in the kitchen. Stay cool at the beach with energy-efficient cooling and heating systems, Low-E insulated windows with screens, and water-saving elongated commodes. For added security, every home comes equipped with a Safe Haven Surveillance system, Skybell doorbell, Honeywell thermostat, and DEAKO Smart Switches. Rest assured with a one-year builder's warranty from DR Horton and a ten-year structural warranty through RWC. Located directly across from the Gulf, you will find beautiful beaches within walking distance, and local restaurants close by. These homes offer easy access to Tyndall Air Force Base (21.7 miles away), Panama City Beach (39 miles away), and downtown Port St. Joe (only 6 miles away). Enjoy all the WindMark Beach has to offer, complete with beautiful new homes, local food, shopping, boardwalks, and beach access. Stop by our model home to experience WindMark Beach Townhomes today.
-
4BEDS
-
0.05ACRES
-
2BATHS
-
11/2 BATHS
-
1,710SQFT
-
$269$/SQFT
School Ratings & Info
Description
Welcome to 297 Sea Tern Lane, a new home at WindMark Townhomes located in the highly visited Port Saint Joe, Florida. The Sabal Townhome features 2 floor plans, an interior and exterior unit. These thoughtfully designed townhomes offer either 4 bedrooms and 2.5 bathrooms or 3 bedrooms and 2.5 bathrooms. The single townhome has a 1-car garage, and the exterior unit has a 2-car garage. On the outside of these units, you will see quality Color-Plus Hardie Board exteriors, complemented by prairie-style doors and 30-year dimensional shingles. Convenience meets security with steel garage doors equipped with openers, weatherproof outlets, hose bibs, and Kwikset deadbolts on all exterior doors. As you enter inside, you will feel right at home with beautiful EVP flooring at your feet, leading you to the open living room and kitchen or the spacious upstairs. In the kitchen and bathroom, you will find gorgeous quartz countertops, white cabinets with brushed nickel hardware, and stainless-steel appliances in the kitchen. Stay cool at the beach with energy-efficient cooling and heating systems, Low-E insulated windows with screens, and water-saving elongated commodes. For added security, every home comes equipped with a Safe Haven Surveillance system, Skybell doorbell, Honeywell thermostat, and DEAKO Smart Switches. Rest assured with a one-year builder's warranty from DR Horton and a ten-year structural warranty through RWC. Located directly across from the Gulf, you will find beautiful beaches within walking distance, and local restaurants close by. These homes offer easy access to Tyndall Air Force Base (21.7 miles away), Panama City Beach (39 miles away), and downtown Port St. Joe (only 6 miles away). Enjoy all the WindMark Beach has to offer, complete with beautiful new homes, local food, shopping, boardwalks, and beach access. Stop by our model home to experience WindMark Beach Townhomes today.
© 2026 Realtors Association of Franklin and Gulf Counties. All rights reserved. IDX information is provided exclusively for consumers' personal, non-commercial use and may not be used for any purpose other than to identify prospective properties consumers may be interested in purchasing. Information is deemed reliable but is not guaranteed accurate by the MLS or Rish Real Estate Group. Data last updated: 2026-02-10T12:42:33.91.
