Description
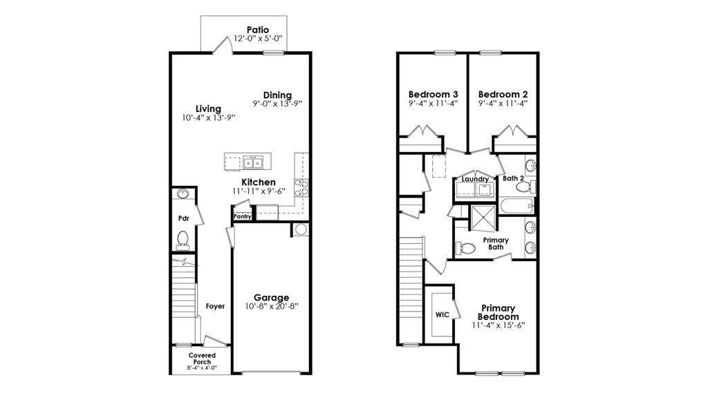
Introducing Chateau Nemours, the newest and most talked about development in Port St Joe. The centerpiece of this blooming community is the Chateau building, a historic building that was relocated from another part of town and is being remodeled into a unique restaurant that Port Saint Joe will be buzzing about. This is a 3 bedroom, 2.5-bathroom townhome. On the outside of these units, you will see quality Color-Plus Vinyl exteriors, complemented by prairie-style doors and 30-year dimensional shingles. Convenience meets security with steel garage doors equipped with openers, weatherproof outlets, hose bibs, and Kwikset deadbolts on all exterior doors. As you enter inside, you will feel right at home with beautiful EVP flooring at your feet, leading you to the open living room and kitchen or the spacious upstairs with cozy carpet on your feet. In the kitchen and bathroom, you will find gorgeous granite countertops, white cabinets with brushed nickel hardware, and stainless-steel appliances in the kitchen. Stay cool indoors with energy-efficient cooling and heating systems, Low-E insulated windows with screens, and water-saving elongated commodes. For added security, every home comes equipped with a Safe Haven Surveillance system, Skybell doorbell, Honeywell thermostat, and DEAKO Smart Switches. Rest assured with a one-year builder's warranty and a ten-year structural warranty. Our Chateau Nemours community features underground utilities making it less susceptible to damage from severe weather leading to fewer outages and more reliable service. Residents of Chateau Nemours can enjoy exclusive access to an amenity center complete with a pool and playground for all to enjoy. Whatever home you're looking for, you will find one at Chateau Nemours. Stop by the model home or schedule a tour online today!
-
3BEDS
-
0.04ACRES
-
2BATHS
-
11/2 BATHS
-
1,460SQFT
-
$185$/SQFT
School Ratings & Info
Description
Introducing Chateau Nemours, the newest and most talked about development in Port St Joe. The centerpiece of this blooming community is the Chateau building, a historic building that was relocated from another part of town and is being remodeled into a unique restaurant that Port Saint Joe will be buzzing about. This is a 3 bedroom, 2.5-bathroom townhome. On the outside of these units, you will see quality Color-Plus Vinyl exteriors, complemented by prairie-style doors and 30-year dimensional shingles. Convenience meets security with steel garage doors equipped with openers, weatherproof outlets, hose bibs, and Kwikset deadbolts on all exterior doors. As you enter inside, you will feel right at home with beautiful EVP flooring at your feet, leading you to the open living room and kitchen or the spacious upstairs with cozy carpet on your feet. In the kitchen and bathroom, you will find gorgeous granite countertops, white cabinets with brushed nickel hardware, and stainless-steel appliances in the kitchen. Stay cool indoors with energy-efficient cooling and heating systems, Low-E insulated windows with screens, and water-saving elongated commodes. For added security, every home comes equipped with a Safe Haven Surveillance system, Skybell doorbell, Honeywell thermostat, and DEAKO Smart Switches. Rest assured with a one-year builder's warranty and a ten-year structural warranty. Our Chateau Nemours community features underground utilities making it less susceptible to damage from severe weather leading to fewer outages and more reliable service. Residents of Chateau Nemours can enjoy exclusive access to an amenity center complete with a pool and playground for all to enjoy. Whatever home you're looking for, you will find one at Chateau Nemours. Stop by the model home or schedule a tour online today!
© 2026 Realtors Association of Franklin and Gulf Counties. All rights reserved. IDX information is provided exclusively for consumers' personal, non-commercial use and may not be used for any purpose other than to identify prospective properties consumers may be interested in purchasing. Information is deemed reliable but is not guaranteed accurate by the MLS or Rish Real Estate Group. Data last updated: 2026-02-08T23:42:25.413.
