Description
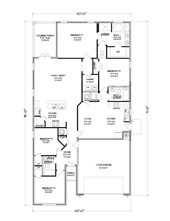
New home under construction in Port St Joe. Located at 664 Norris Drive. This homesite will feature the Kennedy floor plan which has 5 bedrooms, 3 full bathrooms and a 2-car garage. Inside you will find EVP flooring throughout, quartz countertops, and a center island in kitchen with beautiful white cabinetry. This kitchen is outfitted with a standard appliance package including stainless smooth top stove, microwave and dishwasher. This floor plan has a formal dining room and features the primary bedroom off the back of the home. The primary bedroom offers a full ensuite with separate shower and large soak tub. This amazing floor plan has a full laundry room that is perfectly sized as a place for additional shelving and storage. If you are looking for the perfect home that is close to all that Port St. Joe has to offer, look no further. Port St Joe Highschool is a short drive away, as well as historical downtown Port St. Joe. If you enjoy water recreation, you will find a public boat launch at Frank Pate Park less than 4 miles away. Homes are subject to prior sale or rent. Home and community information, association fees (if any), included features, terms, availability and amenities, are subject to change at any time without notice or obligation. Drawings, pictures, photographs, videos, square footages, floor plans, elevations, features, colors and sizes are for illustration purposes only and will vary from the homes as built. Landscaping and furnishings may be decorator items not included in the purchase price and may not be available.
-
5BEDS
-
0.12ACRES
-
3BATHS
-
01/2 BATHS
-
2,145SQFT
-
$168$/SQFT
School Ratings & Info
Description
New home under construction in Port St Joe. Located at 664 Norris Drive. This homesite will feature the Kennedy floor plan which has 5 bedrooms, 3 full bathrooms and a 2-car garage. Inside you will find EVP flooring throughout, quartz countertops, and a center island in kitchen with beautiful white cabinetry. This kitchen is outfitted with a standard appliance package including stainless smooth top stove, microwave and dishwasher. This floor plan has a formal dining room and features the primary bedroom off the back of the home. The primary bedroom offers a full ensuite with separate shower and large soak tub. This amazing floor plan has a full laundry room that is perfectly sized as a place for additional shelving and storage. If you are looking for the perfect home that is close to all that Port St. Joe has to offer, look no further. Port St Joe Highschool is a short drive away, as well as historical downtown Port St. Joe. If you enjoy water recreation, you will find a public boat launch at Frank Pate Park less than 4 miles away. Homes are subject to prior sale or rent. Home and community information, association fees (if any), included features, terms, availability and amenities, are subject to change at any time without notice or obligation. Drawings, pictures, photographs, videos, square footages, floor plans, elevations, features, colors and sizes are for illustration purposes only and will vary from the homes as built. Landscaping and furnishings may be decorator items not included in the purchase price and may not be available.
Related Properties
© 2026 Realtors Association of Franklin and Gulf Counties. All rights reserved. IDX information is provided exclusively for consumers' personal, non-commercial use and may not be used for any purpose other than to identify prospective properties consumers may be interested in purchasing. Information is deemed reliable but is not guaranteed accurate by the MLS or Rish Real Estate Group. Data last updated: 2026-01-19T11:42:31.52.
